Capannone in vendita

Soresina, Via Milano
€ 99.000
Prezzo aggiornato
3 locali 3 locali
400 Mq 400 Mq
1 bagno 1 bagno

Capannone in vendita

Soresina, Via Milano

Descrizione annuncio

DESCRIZIONE E PARTICOLARITÀ

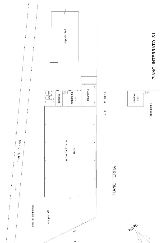
Proponiamo in vendita capannone ubicato in Soresina, precisamente in via Milano.

L’immobile si estende su una superficie di 400 mq con un’area esterna di ulteriori 600 mq. L’accesso avviene tramite due portoni di circa 4,70 m e 2,20 m di altezza e tramite un accesso carraio con cancello automatizzato.

La soluzione è cosÏ caratterizzata:

3 locali;Altezza interna 4,70 m;Completo di impianti: elettrico e illuminazione;Accesso carraio sul fronte dell’immobile;Proprietà cintata;Servizi igienici con doccia;Posti auto internamente alla struttura.

UBICAZIONE E CONTESTO

L’immobile è ubicato nella periferia ovest del centro di Soresina, comune italiano di 8.533 abitanti della provincia di Cremona, facilmente raggiungibile dai principali centri. Dista pochi km da Cremona, Crema ed Orzinuovi.

Mostra tutto

Nelle vicinanze

Trasporto pubblico Trasporto pubblico
Soresina
Soresina
1,5 Km
Scuole Scuole
Istituto Comprensivo Giacomo .Bertesi
1,5 Km
Farmacia Farmacia
Farmacia Segalini Dr. Camillo
1,1 Km
Farmacia Solzi di Ilaria Rossi
1,2 Km
Farmacia Lombardini-Ghezzi
1,3 Km
Ospedali Ospedali
Guardia Medica
1,2 Km
Polo sanitario Nuovo Robbiani
2,6 Km
Supermercati Supermercati
Famila
1,0 Km
Lidl
2,0 Km
Coop
2,1 Km
U2
2,2 Km
Ristoranti Ristoranti
Ristorante il Binario
1,5 Km
Ristoranti
1,5 Km
Mostra tutto

Caratteristiche

Rif.:
61106183
Piano:
Terra di 1
Totale piani:
1
Posti auto:
10
Condizionamento:
Assente
Ascensore:
No
Mostra tutto
Prezzo Prezzo
€ 99.000
Rata mutuo Rata mutuo
€ 466 / mese
Spese annue Spese annue
€ 0
Proponi il tuo prezzoProponi il tuo prezzo

Altre caratteristiche

Descrizione dei locali
Bagno Cieco

Classe Energetica

F
F
F
F
F
F
F
F
F
Anno di costruzione:
1970
Riscaldamento:
Assente

Prezzo ridotto di €1 (18%%)

Ti interessa visionare l'immobile?

Fissa un appuntamento  Fissa un appuntamento

Richiedi informazioni

Clicca su Leggi per aprire l'informativa
* Questi campi sono obbligatori

Calcola il tuo mutuo

Semplice e senza impegno
Anticipo

( % )
Mutuo

( % )

pochi semplici passi

inserisci i tuoi dati
Questionario completato
Grazie per aver richiesto un appuntamento senza impegno con un nostro Consulente del Credito e Assicurativo.

Hai inserito correttamente tutti i dati necessari e a breve riceverai una e-mail con un link da convalidare per inviare i tuoi dati.
Affiliato
Industriale Cremona Srl
Corso Vittorio Emanuele II, 13 26100 Cremona (CR)

Il nostro staff


  • Nicola Gervasi
    Affiliato

  • Lorenzo Del Giudice
    Collaboratore

  • Martina Ferrazzi
    Coordinatrice

  • Francesca Lanzini
    Affiliata

  • Gabriel Ilir Tejada
    Collaboratore

  • Claudio Valecci
    Affiliato
Corso Vittorio Emanuele II, 13 26100 Cremona (CR)
Zona: Cremona
Mostra su mappa
Orari: Da LunedĂŹ a VenerdĂŹ : 8:30 - 12:30 e 14:00 - 19:00 Sabato : 8:30 - 12:30
Affiliato
Industriale Cremona Srl
Corso Vittorio Emanuele II, 13 26100 Cremona (CR)

2026 Tecnocasa Franchising S.p.A. - P. IVA 08365160152 - Via Monte Bianco 60/A 20089 Rozzano (MI). Ogni agenzia ha un proprio titolare ed è autonoma. Privacy policy | Policy utilizzo | Cookie policy