Ufficio in affitto

Cremona, Via Ettore Sacchi
€ 950 / mese
5 locali 5 locali
90 Mq 90 Mq
2 bagni 2 bagni

Ufficio in affitto

Cremona, Via Ettore Sacchi

Descrizione annuncio

PARTICOLARITA' E DESCRIZIONE

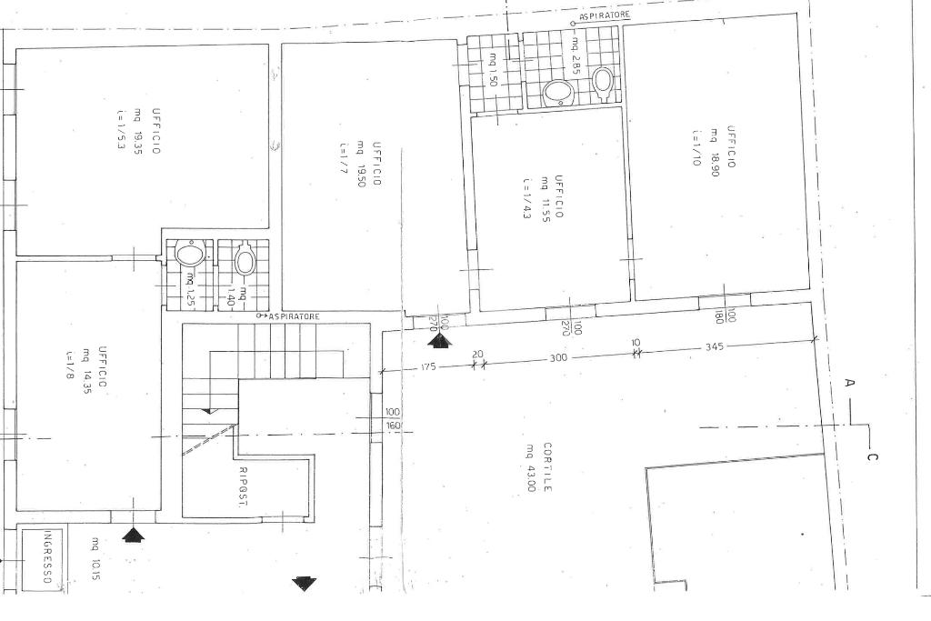
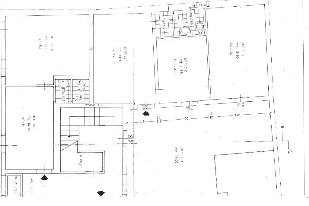
Proponiamo in vendita ufficio situato a Cremona, più precisamente in Via Ettore Sacchi. L’immobile si trova al piano terra di un edificio di tre piani e si sviluppa su una superficie complessiva di circa 90 mq, suddivisa in cinque locali. Gli spazi interni sono ben distribuiti e si prestano all’insediamento di attività direzionali o professionali. L’ufficio è termoautonomo e climatizzato in ogni stanza, garantendo comfort e funzionalità durante tutto l’anno.

La soluzione è così caratterizzata:

- Doppio ingresso

- Controllo accesso

- Doppio ingresso

- Porta blindata

- Affaccio doppio

- Bagno doppio

- Ventilazione meccanica

-Internet banda larga

- SPESE CONDOMINIALI € 420,00/ANNO

LIBERO SUBITO DAL 01/07/2026

UBICAZIONE E CONTESTO

La città di Cremona con 71.924 abitanti è situata nel sud della Lombardia e dista circa 30 km da Piacenza, 50 km da Brescia, 75 km da Bergamo e 85 km da Milano. Città in grande sviluppo, nella quale si concentra la maggior parte delle strutture, dei locali pubblici e dei servizi. Rapida espansione dal punto di vista edilizio e quindi anche dal punto di vista demografico.

Mostra tutto

Nelle vicinanze

Trasporto pubblico Trasporto pubblico
Cremona
Cremona
1,3 Km
Trasporto pubblico
290 m
Fermata Stazione
Fermata Stazione
1,2 Km
Ricariche auto elettriche Ricariche auto elettriche
A2A Cremona Museo del violino
210 m
A2A Cremona Gallina
680 m
A2A Cremona Sant'Agata
710 m
A2A Aselli
910 m
CREMONA Santa Maria | ENELX
920 m
Scuole Scuole
Scuola primaria Capra-Plasio
330 m
Liceo delle Scienze Umane ed Economico Sociale "Sofonisba Anguissola"
720 m
Scuole
720 m
Scuola Secondaria di Primo Grado “M. G. Vida”
770 m
Scuola media Antonio Campi
810 m
Farmacia Farmacia
Lloyds Farmacia Comunale 3
260 m
Lloyds Farmacia Comunale N.6
1,0 Km
Farmacia
1,1 Km
Parafarmacia San Camillo
1,8 Km
Ospedali Ospedali
Casa di cura Figlie di San Camillo
1,6 Km
Ospedale Figlie di San Camillo
1,6 Km
Casa di cura San Camillo
1,7 Km
Ospedale Maggiore di Cremona
2,7 Km
Supermercati Supermercati
Coop Porta Po
360 m
Carrefour
650 m
Italmark
1,1 Km
Penny Market
1,3 Km
Famila
1,3 Km
Negozi Negozi
Menta Paolo
750 m
Negozi
1,1 Km
CVG
2,3 Km
Il Globo
2,3 Km
Bar Bar
Il Maialino di Gio'
270 m
Dibianco
270 m
Bar Greco
340 m
Caffè Tubino
590 m
ACLI Circolo Bruno Chiari
760 m
Ristoranti Ristoranti
Quadrophenia
180 m
Albergo Ristorante Al Duomo
360 m
Osteria La Sosta
360 m
Lo Spuntino Pizzeria Ristorante
410 m
Ristoranti
480 m
Mostra tutto

Caratteristiche

Rif.:
61185250
Piano:
Terra di 3
Totale piani:
3
Condizionamento:
Autonomo
Ascensore:
No
Riscaldamento:
Autonomo
Mostra tutto
Prezzo Prezzo
€ 950 / mese
Spese annue Spese annue
€ 0

Altre caratteristiche

Descrizione dei locali
Bagno antibagno

Classe Energetica

D
D
D
D
D
D
D
D
D
EP globale non rinnovabile:
522.28 kW h/m² anno
EP globale rinnovabile:
57.74 kW h/m² anno
EP invernale del fabbricato:
EP estiva del fabbricato:
Anno di costruzione:
1967
Riscaldamento:
Autonomo
Tipo impianto:
Ad aria
Tipo alimentazione:
Aria

Ti interessa visionare l'immobile?

Fissa un appuntamento  Fissa un appuntamento

Richiedi informazioni

Clicca su Leggi per aprire l'informativa
* Questi campi sono obbligatori
Affiliato
Industriale Cremona Srl
Corso Vittorio Emanuele II, 13 26100 Cremona (CR)

Il nostro staff


  • Nicola Gervasi
    Affiliato

  • Lorenzo Del Giudice
    Collaboratore

  • Martina Ferrazzi
    Coordinatrice

  • Francesca Lanzini
    Affiliata

  • Gabriel Ilir Tejada
    Collaboratore

  • Claudio Valecci
    Affiliato
Corso Vittorio Emanuele II, 13 26100 Cremona (CR)
Zona: Cremona
Mostra su mappa
Orari: Da Lunedì a Venerdì : 8:30 - 12:30 e 14:00 - 19:00 Sabato : 8:30 - 12:30
Affiliato
Industriale Cremona Srl
Corso Vittorio Emanuele II, 13 26100 Cremona (CR)

2026 Tecnocasa Franchising S.p.A. - P. IVA 08365160152 - Via Monte Bianco 60/A 20089 Rozzano (MI). Ogni agenzia ha un proprio titolare ed è autonoma. Privacy policy | Policy utilizzo | Cookie policy