Ufficio in affitto

Cremona, Via Eugenio Beltrami
€ 500 / mese
2 locali 2 locali
50 Mq 50 Mq
1 bagno 1 bagno

Ufficio in affitto

Cremona, Via Eugenio Beltrami

Descrizione annuncio

PARTICOLARITÀ E DESCRIZIONE

Proponiamo in locazione ufficio nel cuore della città di Cremona, in via Beltrami.

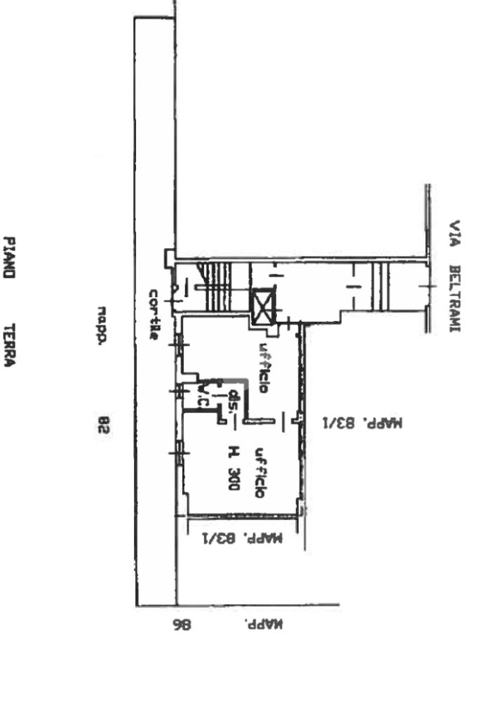
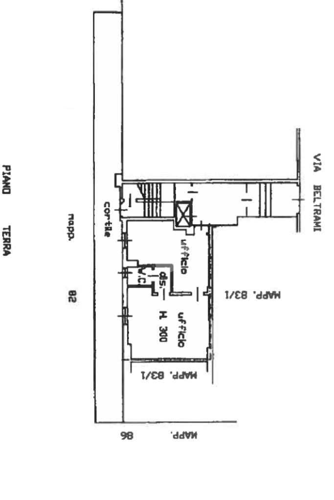
L’immobile, recentemente ristrutturato nel 2022, si sviluppa su una superficie openspace di 55 mq, offrendo ambienti luminosi e versatili, ideali per studi professionali o attività direzionali.

L’ufficio è situato all’interno di un palazzo di cinque piani e comprende, inoltre, due soffitte al terzo piano, perfette come spazi archivio o locali di servizio.

La soluzione è così caratterizzata:

- Due locali
- H soffitto 3 m

- Internet banda larga

- Servizio Igienico

- Porta blindata

- Controllo accessi
- Completo d’impianti a norma di legge: Impianto d'illuminazione, riscaldamento, elettrico

-SPESE CONDOMINIALI 500 € /ANNO

UBICAZIONE E CONTESTO

La città di Cremona con 71.924 abitanti è situata nel sud della Lombardia e dista circa 30 km da Piacenza, 50 km da Brescia, 75 km da Bergamo e 85 km da Milano. Città in grande sviluppo, nella quale si concentra la maggior parte delle strutture, dei locali pubblici e dei servizi. Rapida espansione dal punto di vista edilizio e quindi anche dal punto di vista demografico.

Mostra tutto

Nelle vicinanze

Trasporto pubblico Trasporto pubblico
Cremona
Cremona
1,3 Km
Trasporto pubblico
350 m
Fermata Stazione
Fermata Stazione
1,2 Km
Ricariche auto elettriche Ricariche auto elettriche
A2A Cremona Museo del violino
130 m
CREMONA Santa Maria | ENELX
630 m
A2A Cremona Gallina
670 m
A2A Cremona Sant'Agata
850 m
A2A Aselli
880 m
Scuole Scuole
Scuola primaria Capra-Plasio
460 m
Scuole
480 m
Scuola Secondaria di Primo Grado “M. G. Vida”
520 m
Scuola media Antonio Campi
720 m
Liceo delle Scienze Umane ed Economico Sociale "Sofonisba Anguissola"
790 m
Farmacia Farmacia
Lloyds Farmacia Comunale 3
550 m
Lloyds Farmacia Comunale N.6
760 m
Farmacia
840 m
Parafarmacia San Camillo
1,5 Km
Ospedali Ospedali
Casa di cura San Camillo
1,4 Km
Casa di cura Figlie di San Camillo
1,7 Km
Ospedale Figlie di San Camillo
1,8 Km
Ospedale Maggiore di Cremona
2,4 Km
Supermercati Supermercati
Carrefour
480 m
Coop Porta Po
640 m
Esselunga
1,0 Km
Italmark
1,1 Km
Famila
1,2 Km
Negozi Negozi
Negozi
890 m
Menta Paolo
900 m
CVG
2,4 Km
Il Globo
2,4 Km
Bar Bar
Il Maialino di Gio'
100 m
Dibianco
210 m
Bar Greco
340 m
Caffè Tubino
410 m
ACLI Circolo Bruno Chiari
820 m
Ristoranti Ristoranti
Osteria La Sosta
80 m
Albergo Ristorante Al Duomo
150 m
Taverna La Botte
320 m
Trattoria del tempo perso
320 m
Osteria Degli Archi
360 m
Mostra tutto

Caratteristiche

Rif.:
61122353
Piano:
Terra di 5 con ascensore
Totale piani:
5
Condizionamento:
Autonomo
Ascensore:
Riscaldamento:
Autonomo
Mostra tutto
Prezzo Prezzo
€ 500 / mese
Spese annue Spese annue
€ 500

Altre caratteristiche

Descrizione dei locali
Bagno Con Finestra

Classe Energetica

D
D
D
D
D
D
D
D
D
Anno di costruzione:
1960
Riscaldamento:
Autonomo
Tipo impianto:
Ad aria
Tipo alimentazione:
Aria

Ti interessa visionare l'immobile?

Fissa un appuntamento  Fissa un appuntamento

Richiedi informazioni

Clicca su Leggi per aprire l'informativa
* Questi campi sono obbligatori
Affiliato
Industriale Cremona Srl
Corso Vittorio Emanuele II, 13 26100 Cremona (CR)

Il nostro staff


  • Nicola Gervasi
    Affiliato

  • Lorenzo Del Giudice
    Collaboratore

  • Martina Ferrazzi
    Coordinatrice

  • Francesca Lanzini
    Affiliata

  • Gabriel Ilir Tejada
    Collaboratore

  • Claudio Valecci
    Affiliato
Corso Vittorio Emanuele II, 13 26100 Cremona (CR)
Zona: Cremona
Mostra su mappa
Orari: Da Lunedì a Venerdì : 8:30 - 12:30 e 14:00 - 19:00 Sabato : 8:30 - 12:30
Affiliato
Industriale Cremona Srl
Corso Vittorio Emanuele II, 13 26100 Cremona (CR)

2026 Tecnocasa Franchising S.p.A. - P. IVA 08365160152 - Via Monte Bianco 60/A 20089 Rozzano (MI). Ogni agenzia ha un proprio titolare ed è autonoma. Privacy policy | Policy utilizzo | Cookie policy