Negozio in vendita

Cremona, Via Angelo Massarotti
€ 220.000
5 locali 5 locali
200 Mq 200 Mq
2 bagni 2 bagni

Negozio in vendita

Cremona, Via Angelo Massarotti

Descrizione annuncio

DESCRIZIONE E PARTICOLARITA'
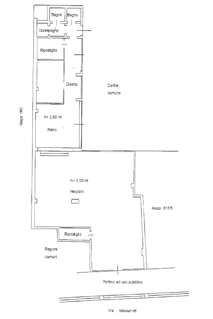
Proponiamo in vendita un locale commerciale situato a Cremona, in Via Massarotti. L’immobile, posto al piano terra, è suddiviso in cinque locali e si sviluppa su una superficie di circa 200 mq.

È inoltre disponibile un box auto di circa 18 mq al prezzo di € 15.000,00.

Il contesto in cui si inserisce l’immobile è particolarmente favorevole, grazie alla sua posizione in una zona di forte passaggio sia pedonale che veicolare, garantendo un’ottima visibilità e un’elevata affluenza.

La soluzione è stata oggetto di ristrutturazione nell’anno 2020 ed è così caratterizzata:
- Cinque locali

- Doppio ingresso

-Completo di tutti gli impianti: riscaldamento, aria condizionata, illuminazione, elettrico

- Luci d’emergenza

- Affaccio doppio

- Ventilazione meccanica

- SPESE CONDOMINIALI €1.650,00

- Due servizi igienici

LIBERO SUBITO

UBICAZIONE E CONTESTO
La città di Cremona con 71.924 abitanti è situata nel sud della Lombardia e dista circa 30 km da Piacenza, 50 km da Brescia, 75 km da Bergamo e 85 km da Milano. Città in grande sviluppo, nella quale si concentra la maggior parte delle strutture, dei locali pubblici e dei servizi. Rapida espansione dal punto di vista edilizio e quindi anche dal punto di vista demografico.

Mostra tutto

Nelle vicinanze

Trasporto pubblico Trasporto pubblico
Cremona
Cremona
1,1 Km
Trasporto pubblico
710 m
Fermata Stazione
Fermata Stazione
980 m
Ricariche auto elettriche Ricariche auto elettriche
A2A Cremona Sant'Agata
550 m
A2A Cremona Museo del violino
720 m
A2A Cremona Gallina
810 m
A2A Cremona Risorgimento
930 m
Cremona Piscina Comunale | EnelX
990 m
Scuole Scuole
Scuola primaria Capra-Plasio
490 m
Dipartimento di Musicologia e Beni Culturali, Università di Pavia
680 m
Liceo delle Scienze Umane ed Economico Sociale "Sofonisba Anguissola"
710 m
Scuole
750 m
Liceo Scientifico Statale "Gaspare Aselli"
830 m
Farmacia Farmacia
Lloyds Farmacia Comunale 3
320 m
Farmacia
1,4 Km
Lloyds Farmacia Comunale N.6
1,5 Km
Parafarmacia San Camillo
2,2 Km
Ospedali Ospedali
Casa di cura Figlie di San Camillo
1,3 Km
Ospedale Figlie di San Camillo
1,3 Km
Casa di cura San Camillo
2,1 Km
Supermercati Supermercati
Coop Porta Po
300 m
Penny Market
810 m
Simply Market
970 m
Carrefour
1,0 Km
Italmark
1,1 Km
Negozi Negozi
Menta Paolo
580 m
Negozi
1,1 Km
CVG
2,1 Km
Il Globo
2,1 Km
Bar Bar
Bar Greco
640 m
Dibianco
680 m
ACLI Circolo Bruno Chiari
730 m
Il Maialino di Gio'
740 m
Bar
890 m
Ristoranti Ristoranti
Lo Spuntino Pizzeria Ristorante
230 m
Osteria Cittadella - Art & Pub
280 m
Quadrophenia
340 m
Antica Pizzeria del Corso
610 m
Ristoranti
700 m
Mostra tutto

Caratteristiche

Rif.:
61185838
Piano:
Terra di 4 con ascensore
Totale piani:
4
Box:
1
Condizionamento:
Autonomo
Ascensore:
Mostra tutto
Prezzo Prezzo
€ 220.000
Rata mutuo Rata mutuo
€ 1.027 / mese
Spese annue Spese annue
€ 1.650
Proponi il tuo prezzoProponi il tuo prezzo

Altre caratteristiche

Descrizione dei locali
Bagno antibagno

Classe Energetica

Questo immobile è esente da classe energetica
Anno di costruzione:
1900
Riscaldamento:
Autonomo
Tipo impianto:
Ad aria
Tipo alimentazione:
Aria

Ti interessa visionare l'immobile?

Fissa un appuntamento  Fissa un appuntamento

Richiedi informazioni

Clicca su Leggi per aprire l'informativa
* Questi campi sono obbligatori

Calcola il tuo mutuo

Semplice e senza impegno
Anticipo

( % )
Mutuo

( % )

pochi semplici passi

inserisci i tuoi dati
Questionario completato
Grazie per aver richiesto un appuntamento senza impegno con un nostro Consulente del Credito e Assicurativo.

Hai inserito correttamente tutti i dati necessari e a breve riceverai una e-mail con un link da convalidare per inviare i tuoi dati.
Affiliato
Industriale Cremona Srl
Corso Vittorio Emanuele II, 13 26100 Cremona (CR)

Il nostro staff


  • Nicola Gervasi
    Affiliato

  • Lorenzo Del Giudice
    Collaboratore

  • Martina Ferrazzi
    Coordinatrice

  • Francesca Lanzini
    Affiliata

  • Gabriel Ilir Tejada
    Collaboratore

  • Claudio Valecci
    Affiliato
Corso Vittorio Emanuele II, 13 26100 Cremona (CR)
Zona: Cremona
Mostra su mappa
Orari: Da Lunedì a Venerdì : 8:30 - 12:30 e 14:00 - 19:00 Sabato : 8:30 - 12:30
Affiliato
Industriale Cremona Srl
Corso Vittorio Emanuele II, 13 26100 Cremona (CR)

2026 Tecnocasa Franchising S.p.A. - P. IVA 08365160152 - Via Monte Bianco 60/A 20089 Rozzano (MI). Ogni agenzia ha un proprio titolare ed è autonoma. Privacy policy | Policy utilizzo | Cookie policy