Negozio in affitto

Cremona, Via Stella
€ 700 / mese
2 locali 2 locali
90 Mq 90 Mq
1 bagno 1 bagno

Negozio in affitto

Cremona, Via Stella

Descrizione annuncio

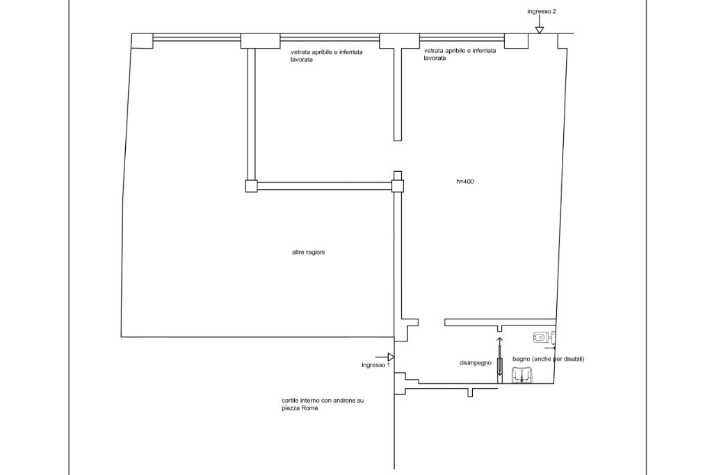
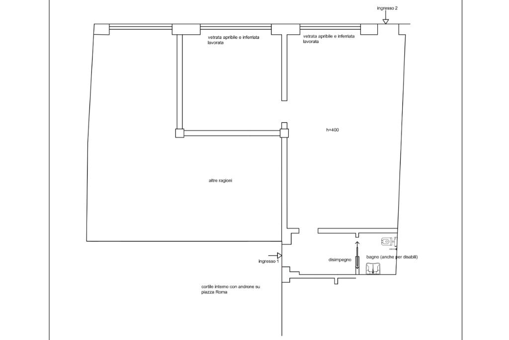
PARTICOLARITA' E DESCRIZIONE
Proponiamo in locazione locale commerciale situato a Cremona, più precisamente con ingresso principale in Piazza Roma con secondo ingresso in Vicolo Stella.
L’immobile si sviluppa su una superficie complessiva di circa 90 mq e si trova al piano terra di un palazzo di cinque piani. Il locale dispone di impianto di riscaldamento centralizzato tramite teleriscaldamento, mentre per il condizionamento è presente la sola predisposizione, ma l’impianto non è installato. La posizione centrale e la metratura rendono l'immobile adatto a diverse tipologie di attività commerciali o professionali.

Caratteristiche principali:

-Due vetrine che si affacciano su Vicolo Stella

-Doppio ingresso

-Porta blindata

-Accesso e servizio igienico per disabili

-Ventilazione meccanica

-Impianto elettrico e di illuminazione

-Affaccio doppio

-Uscita e luci d’emergenza

-SPESE CONDOMINIALI 800 € ALL'ANNO

LIBERO SUBITO

UBICAZIONE E CONTESTO
La città di Cremona con 71.924 abitanti è situata nel sud della Lombardia e dista circa 30 km da Piacenza, 50 km da Brescia, 75 km da Bergamo e 85 km da Milano. Città in grande sviluppo, nella quale si concentra la maggior parte delle strutture, dei locali pubblici e dei servizi. Rapida espansione dal punto di vista edilizio e quindi anche dal punto di vista demografico.

Mostra tutto

Nelle vicinanze

Trasporto pubblico Trasporto pubblico
Cremona
Cremona
1,0 Km
Trasporto pubblico
710 m
Fermata Stazione
Fermata Stazione
960 m
Ricariche auto elettriche Ricariche auto elettriche
A2A Cremona Gallina
350 m
A2A Cremona Museo del violino
480 m
A2A Aselli
520 m
A2A Cremona Sant'Agata
670 m
Cremona Libertà | EnelX
710 m
Scuole Scuole
Scuole
290 m
Scuola Secondaria di Primo Grado “M. G. Vida”
340 m
Scuola media Antonio Campi
340 m
Scuola primaria Capra-Plasio
390 m
Liceo delle Scienze Umane ed Economico Sociale "Sofonisba Anguissola"
530 m
Farmacia Farmacia
Farmacia
550 m
Lloyds Farmacia Comunale N.6
650 m
Lloyds Farmacia Comunale 3
740 m
Parafarmacia San Camillo
1,3 Km
Ospedali Ospedali
Casa di cura San Camillo
1,2 Km
Casa di cura Figlie di San Camillo
1,5 Km
Ospedale Figlie di San Camillo
1,5 Km
Ospedale Maggiore di Cremona
2,4 Km
Supermercati Supermercati
Carrefour
140 m
Italmark
700 m
Famila
800 m
Coop Porta Po
850 m
Esselunga
860 m
Negozi Negozi
Negozi
550 m
Menta Paolo
710 m
CVG
2,1 Km
Il Globo
2,1 Km
Bar Bar
Caffè Tubino
100 m
Bar Greco
230 m
Dibianco
250 m
Il Maialino di Gio'
300 m
ACLI Circolo Bruno Chiari
560 m
Ristoranti Ristoranti
Taverna La Botte
110 m
Trattoria del tempo perso
190 m
Ristoranti
230 m
Albergo Ristorante Al Duomo
230 m
Osteria Degli Archi
250 m
Mostra tutto

Caratteristiche

Rif.:
61108285
Piano:
1 di 5 (Piano terra)
Condizionamento:
Predisposizione impianto
Ascensore:
No
Riscaldamento:
Centralizzato
Giardino:
Condominiale
Mostra tutto
Prezzo Prezzo
€ 700 / mese
Spese annue Spese annue
€ 800

Altre caratteristiche

Descrizione dei locali
Bagno Con Finestra

Classe Energetica

E
E
E
E
E
E
E
E
E
Anno di costruzione:
1967
Riscaldamento:
Centralizzato
Tipo impianto:
A radiatori
Tipo alimentazione:
Gasolio

Ti interessa visionare l'immobile?

Fissa un appuntamento  Fissa un appuntamento

Richiedi informazioni

Clicca su Leggi per aprire l'informativa
* Questi campi sono obbligatori
Affiliato
Industriale Cremona Srl
Corso Vittorio Emanuele II, 13 26100 Cremona (CR)

Il nostro staff


  • Nicola Gervasi
    Affiliato

  • Lorenzo Del Giudice
    Collaboratore

  • Martina Ferrazzi
    Coordinatrice

  • Francesca Lanzini
    Affiliata

  • Gabriel Ilir Tejada
    Collaboratore

  • Claudio Valecci
    Affiliato
Corso Vittorio Emanuele II, 13 26100 Cremona (CR)
Zona: Cremona
Mostra su mappa
Orari: Da Lunedì a Venerdì : 8:30 - 12:30 e 14:00 - 19:00 Sabato : 8:30 - 12:30
Affiliato
Industriale Cremona Srl
Corso Vittorio Emanuele II, 13 26100 Cremona (CR)

2025 Tecnocasa Franchising S.p.A. - P. IVA 08365160152 - Via Monte Bianco 60/A 20089 Rozzano (MI). Ogni agenzia ha un proprio titolare ed è autonoma. Privacy policy | Policy utilizzo | Cookie policy