Capannone in affitto

Cremona, Via Dè Berenzani
1500 Mq 1500 Mq
6 bagni 6 bagni

Capannone in affitto

Cremona, Via Dè Berenzani

Descrizione annuncio

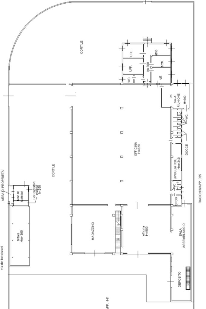
PARTICOLARITA’ E DESCRIZIONE

Proponiamo in locazione capannone ubicato a Cremona, precisamente in Via de’ Berenzani. L’immobile si sviluppa su un lotto di area complessiva di circa 3.000 mq, di cui circa 1.500 mq adibiti a capannone, comprensivi di circa 110 mq destinati a uffici, il tutto disposto su due piani. Completano la proprietà circa 1.500 mq di area esterna recintata. L’immobile è dotato di copertura in amianto e di cabina elettrica con potenza di 200 kW. L’intero compendio è completamente recintato e l’accesso avviene tramite ingresso carraio.

La soluzione è così caratterizzata:

Quattordici localiCarroponte con portata 5 TonCarroponte con portata 20 TonMensoleRiscaldamento e condizionamento autonomi Altezza sottotrave capannone 5 mTre campateDue portoniImpianti: illuminazione ed elettricoUscita d’emergenzaProprietà recintataSei servizi igienici

LIBERO SUBITO

UBICAZIONE E CONTESTO

La città di Cremona con 71.924 abitanti è situata nel sud della Lombardia e dista circa 30 km da Piacenza, 50 km da Brescia, 75 km da Bergamo e 85 km da Milano. Città in grande sviluppo, nella quale si concentra la maggior parte delle strutture, dei locali pubblici e dei servizi. Rapida espansione dal punto di vista edilizio e quindi anche dal punto di vista demografico.

Mostra tutto

Nelle vicinanze

Trasporto pubblico Trasporto pubblico
Cava Tigozzi
Cava Tigozzi
2,1 Km
Ricariche auto elettriche Ricariche auto elettriche
Ekomobil - 22 kW
420 m
Crema Diesel S.p.A. | EnelX
850 m
EnelX cc Cremona Po
1,3 Km
Centro Commerciale Cremona Po
1,4 Km
Carrozzeria Fratelli Sala | EnelX
1,5 Km
Scuole Scuole
Scuole
1,7 Km
Università Cattolica del Sacro Cuore
1,7 Km
ITIS J. Torriani
1,7 Km
Farmacia Farmacia
Farmacia
2,3 Km
Ospedali Ospedali
Ospedale Figlie di San Camillo
2,7 Km
Casa di cura Figlie di San Camillo
2,8 Km
Supermercati Supermercati
Ipercoop
1,6 Km
Carrefour
1,6 Km
Lidl
2,2 Km
MD
2,3 Km
Insediamento commerciale "I Navigli"
2,5 Km
Negozi Negozi
Il Globo
2,4 Km
CVG
2,5 Km
Negozi
2,6 Km
Bar Bar
Bar Dani
890 m
Bar
1,9 Km
Baricentro
2,2 Km
L'Oasi Bar
2,3 Km
Vecchia Osteria l’Oca Bianca
2,9 Km
Ristoranti Ristoranti
Al Carrobbio
1,7 Km
Bar Ristorante Al Volo
2,1 Km
Porto Alegre
2,4 Km
Petti Rosso
2,5 Km
Trattoria il Cantinone d’Inverno
2,6 Km
Mostra tutto

Caratteristiche

Rif.:
61160564
Piano:
1 di 2 (Piano su più livelli)
Posti auto:
10
Condizionamento:
Autonomo
Ascensore:
No
Riscaldamento:
Autonomo
Mostra tutto
Prezzo Prezzo
€ 3.500 / mese
Spese annue Spese annue
€ 0
Anche in vendita a

Altre caratteristiche

Descrizione dei locali
Bagno Con Finestra

Classe Energetica

Questo immobile è esente da classe energetica
Anno di costruzione:
2015
Riscaldamento:
Autonomo
Tipo impianto:
Ad aria
Tipo alimentazione:
Aria

Ti interessa visionare l'immobile?

Fissa un appuntamento  Fissa un appuntamento

Richiedi informazioni

Clicca su Leggi per aprire l'informativa
* Questi campi sono obbligatori
Affiliato
Industriale Cremona Srl
Corso Vittorio Emanuele II, 13 26100 Cremona (CR)

Il nostro staff


  • Nicola Gervasi
    Affiliato

  • Lorenzo Del Giudice
    Collaboratore

  • Martina Ferrazzi
    Coordinatrice

  • Francesca Lanzini
    Affiliata

  • Gabriel Ilir Tejada
    Collaboratore

  • Claudio Valecci
    Affiliato
Corso Vittorio Emanuele II, 13 26100 Cremona (CR)
Zona: Cremona
Mostra su mappa
Orari: Da Lunedì a Venerdì : 8:30 - 12:30 e 14:00 - 19:00 Sabato : 8:30 - 12:30
Affiliato
Industriale Cremona Srl
Corso Vittorio Emanuele II, 13 26100 Cremona (CR)

2026 Tecnocasa Franchising S.p.A. - P. IVA 08365160152 - Via Monte Bianco 60/A 20089 Rozzano (MI). Ogni agenzia ha un proprio titolare ed è autonoma. Privacy policy | Policy utilizzo | Cookie policy