Capannone in affitto

Annicco, Via Papa Giovanni XXIII
€ 3.200 / mese
Prezzo aggiornato
8 locali 8 locali
1200 Mq 1200 Mq
4 bagni 4 bagni

Capannone in affitto

Annicco, Via Papa Giovanni XXIII

Descrizione annuncio

PARTICOLARITA’ E DESCRIZIONE

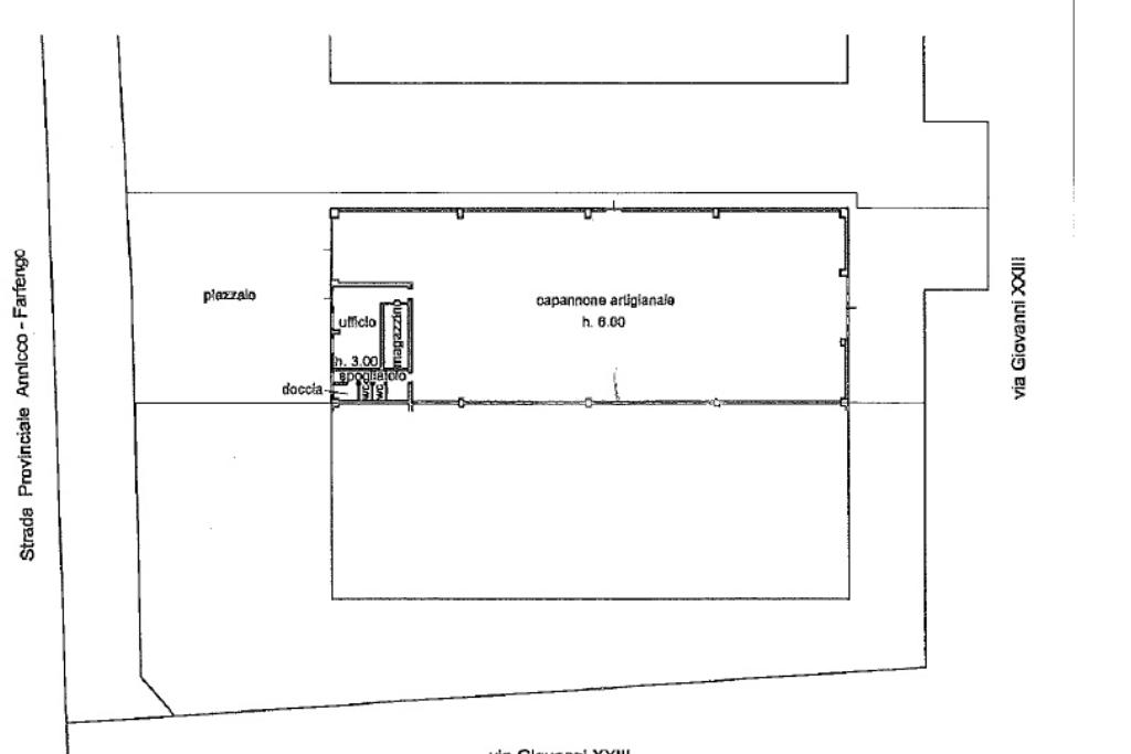
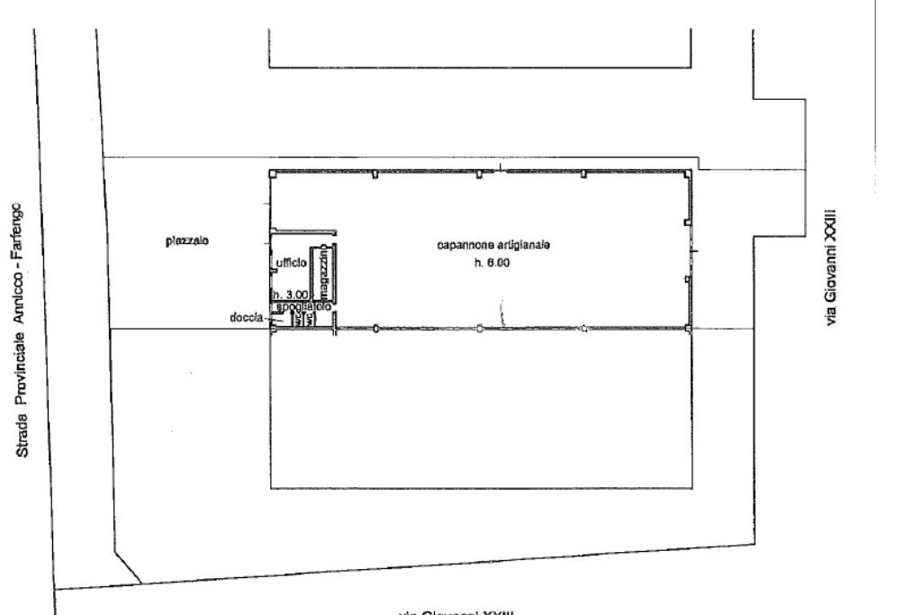
Proponiamo in locazione capannone ubicato ad Annicco, precisamente in Via Giovanni XXIII. L'immobile si sviluppa su un lotto di area di 2200 mq di cui 1200 mq circa adibiti a capannanone e 100 mq circa dedicati a zona uffici. A completare la soluzione circa 1000 mq di area esterna ad uso esclusivo. La proprietà è completamente recintata e l'accesso alla stessa avviene tramite due accessi carrai.

La soluzione è così caratterizzata:

Otto localiDue accessi carraiAltezza capannone 7,3 mAltezza sottotrave 5,9PilastriDue campateQuattro portoni (altezza portoni 4 – larghezza portoni 5)Impianti: illuminazione ed elettricoUscita e luci d’emergenzaProprietà recintataSpogliatoio con due docceQuattro servizi igienici

LIBERO SUBITO

UBICAZIONE E CONTESTO

Annicco è un comune italiano di 1 968 abitanti della provincia di Cremona in Lombardia. A 16 Km da Cremona, 60 Km da Bergamo, 60 Km da Brescia e 70 Km da Milano, Annicco è situato nella bassa pianura lombarda, tra l'Adda, l'Oglio e la roggia Muzza.

Mostra tutto

Nelle vicinanze

Trasporto pubblico Trasporto pubblico
Trasporto pubblico
1,9 Km
Ristoranti Ristoranti
CIVICO 02 CAFE' TRATTORIA E PIZZERIA
420 m
Ristoranti
1,9 Km
Mostra tutto

Caratteristiche

Rif.:
61118410
Piano:
1 di 1 (Piano terra)
Condizionamento:
Assente
Ascensore:
No
Riscaldamento:
Assente
Giardino:
Privato
Mostra tutto
Prezzo Prezzo
€ 3.200 / mese
Spese annue Spese annue
€ 0

Altre caratteristiche

Descrizione dei locali
Bagno Con Finestra

Classe Energetica

E
E
E
E
E
E
E
E
E
Anno di costruzione:
2000
Riscaldamento:
Assente

Prezzo ridotto di €1 (6%%)

Ti interessa visionare l'immobile?

Fissa un appuntamento  Fissa un appuntamento

Richiedi informazioni

Clicca su Leggi per aprire l'informativa
* Questi campi sono obbligatori
Affiliato
Industriale Cremona Srl
Corso Vittorio Emanuele II, 13 26100 Cremona (CR)

Il nostro staff


  • Nicola Gervasi
    Affiliato

  • Lorenzo Del Giudice
    Collaboratore

  • Martina Ferrazzi
    Coordinatrice

  • Francesca Lanzini
    Affiliata

  • Gabriel Ilir Tejada
    Collaboratore

  • Claudio Valecci
    Affiliato
Corso Vittorio Emanuele II, 13 26100 Cremona (CR)
Zona: Cremona
Mostra su mappa
Orari: Da Lunedì a Venerdì : 8:30 - 12:30 e 14:00 - 19:00 Sabato : 8:30 - 12:30
Affiliato
Industriale Cremona Srl
Corso Vittorio Emanuele II, 13 26100 Cremona (CR)

2026 Tecnocasa Franchising S.p.A. - P. IVA 08365160152 - Via Monte Bianco 60/A 20089 Rozzano (MI). Ogni agenzia ha un proprio titolare ed è autonoma. Privacy policy | Policy utilizzo | Cookie policy